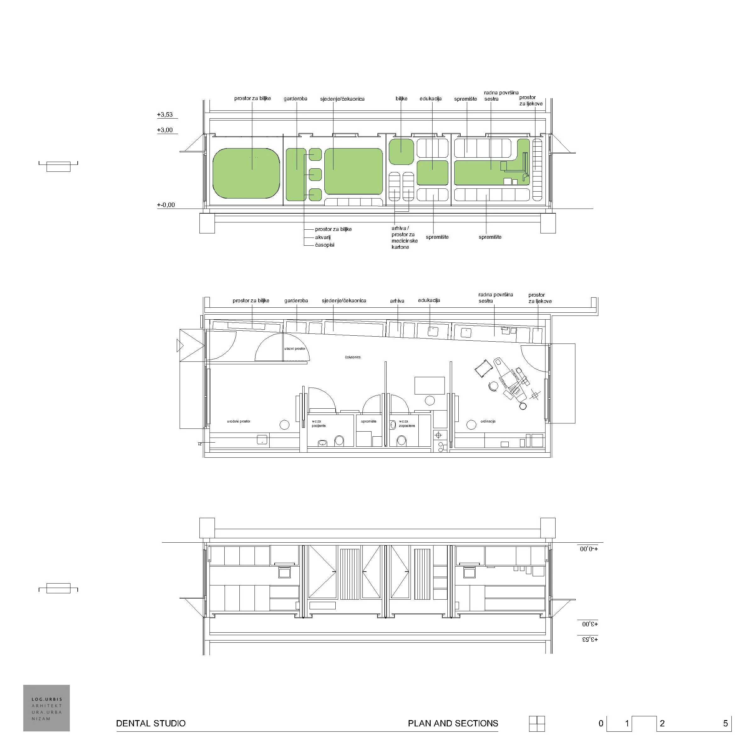
DENTAL STUDIO

program: healthcare

location: Zagreb

interior project: 2006

construction: 2006

gross floor area: 70m2

client: private

project team: Tea Horvat, Radovan Šobat, Mirna Horvat, Mario Car, Marko Zlonoga, Hrvoje Babić