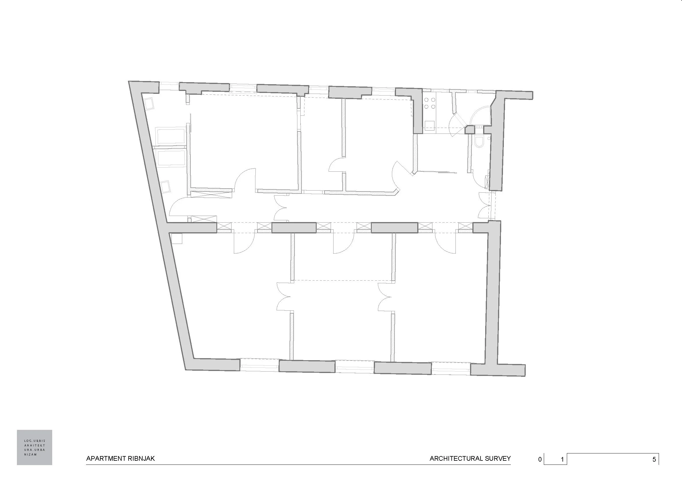
APARTMENT RIBNJAK

program:                  3 - bedroom apartment

location:                   Ribnjak street, Zagreb

project:                     2016

reconstruction: 2017

net floor area:     150 m2

client:                        private

project team:          Tea Horvat, Radovan Šobat

photo:      Robert Leš